Lot 6-6500 In Shuck Ch Forest Service Road
Lot 6-6500 In Shuck Ch Forest Service Road
Chalet in Lillooet Lake
Chalet in Lillooet Lake
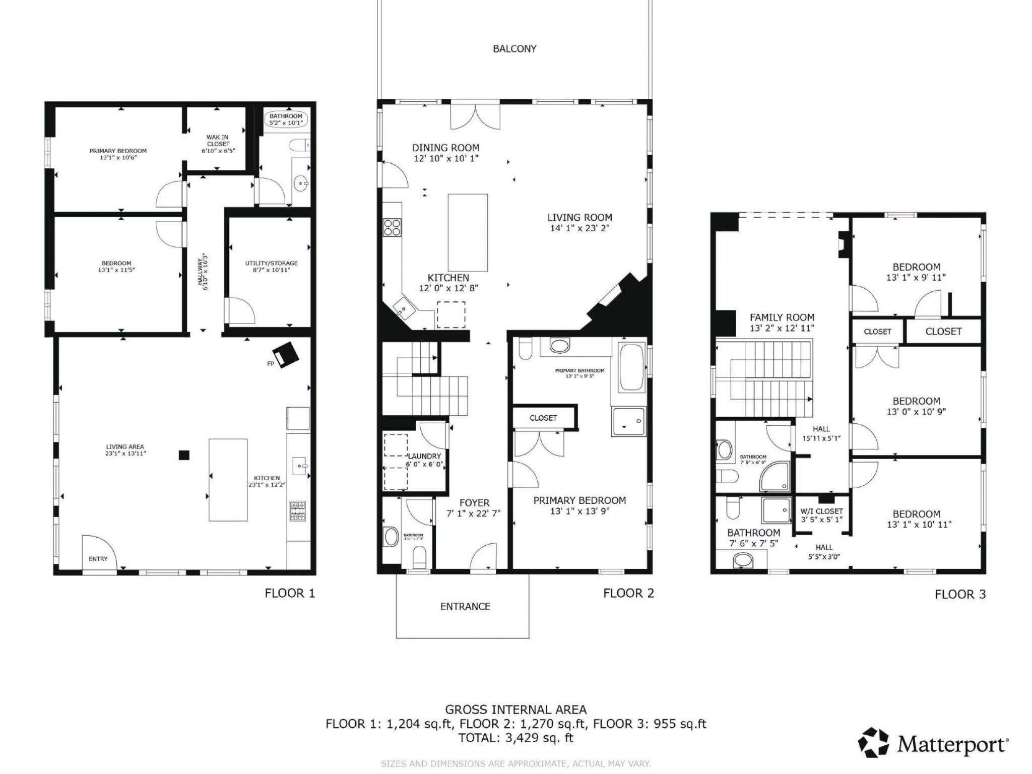
6.0 Bedrooms | 4.0 Bathrooms | 3429 Sq. Ft.
6.0 Bedrooms | 4.0 Bathrooms | 3429 Sq. Ft.
Offered At: $2,450,000
Offered At: $2,450,000
Designed for efficient, off-grid living, this lakefront home on Lillooet Lake combines thoughtful construction with a relaxed waterfront lifestyle. Built with ICF construction, a SIP roof system, and 41 high-performance windows, the three-level residence is naturally bright and energy efficient. Six bedrooms and 5 bathrooms provide flexibility for family use and guests. A solar power system with new 2023 batteries, backup generator, and multiple heating sources support year-round comfort. Outdoor living includes Trex decking, a private dock, and a solar-heated pool overlooking the lake. Set on approximately one acre with irrigated gardens, this property offers a rare opportunity for sustainable lakefront ownership in Lillooet Lake Estates.








































